Descriere Imobil
Apartament 2 camere de vanzare, decomandat, 58 mpu, zona Doamna Stanca, Sibiu.Avantaje majore ale acestui apartament:
• Camerele decomandate cu bucataria separata
• Etajul 8 cu balcon tip logie, vedere spre munti
• Balcon tip logie
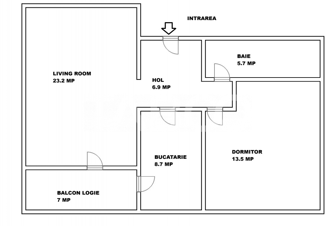
TABOO Imobiliare propune un apartament de vanzare cu 2 camere, decomandat, situat in localitatea Sibiu, zona Doamna Stanca, aflat la etajul 8 intr -un imobil tip bloc cu regim de inaltime pe Parter + 9 Etaje; anul constructiei 2023, structura caramida. Suprafata utila de 58 mp + balcon de 7 mp.
Apartamentul este structurat astfel:
• Hol de compartimentare;
• Bucatarie separata;
• Baie cu dus;
• Living cu balcon;
• Dormitor;
• Dressing;
Finisajele interioare sunt de lux:
• Usa intrare: metal;
• Usi interioare: celulare;
• Tamplarie ferestre: pvc, termopan;
• Pereti: vopsea lavabila, faianta;
• Podele: parchet, gresie.
Utilitati si dotari:
• Bucatarie: mobilata, utilata;
• Mobilat: complet;
• Utilitati: curent electric, apa, canalizare, gaz, catv, telefon, acces internet, fibra optica;
• Izolatii: exterior, bloc izolat termic;
• Contorizare: apometre, contor gaz, contor curent electric;
• Caracteristici bloc: videointerfon, supraveghere video, lift.
Apartamentul se vinde mobilat si utilat cu: plita electrica, cuptor, hota, frigider cu congelator.
Incalzirea se realizeaza prin centrala proprie, calorifere si dispune de sistem de climatizare (A.C.).
Se accepta ca si modalitate de plata surse proprii sau credit bancar.
Apartament 2 camere 58 mpu mobilat si utilat premium Doamna Stanca
Detalii Proprietate
Bucatarie
- Mobilata
- Utilata
Dotari
- Complet
- Dressing
- Mobilata
- Utilata
- Apometre
- Contor gaz
- Frigider
- TV
- Hota
- Videointerfon
- Lift
Finisaje
- Finisat
- Exterior
- Bloc izolat termic
- Vopsea lavabila
- Faianta
- Tapet
- Parchet
- Gresie
- PVC
- Metal
- Celulare
Videoclip
Oferte similare în zona Doamna Stanca:
Proprietăți asemănătoare:
