Descriere Imobil
Apartament 3 camere de vanzare, decomandat, 59 mp, zona Selimbar, Sibiu.Apartament primitor cu gradina proprie, un colt de liniste unde te poti bucura de aer curat si momente de relaxare. Ideal pentru serile petrecute afara sau pentru a crea un spatiu verde dupa propriul gust. O alegere calda pentru un camin confortabil.
Avantaje majore ale acestui apartament:
• Un loc de parcare inclus in pret
• Pretabil investitie sigura
• Locatie ferita de aglomeratie
• Teren propriu in folosinta exclusiva ( gradina proprie)
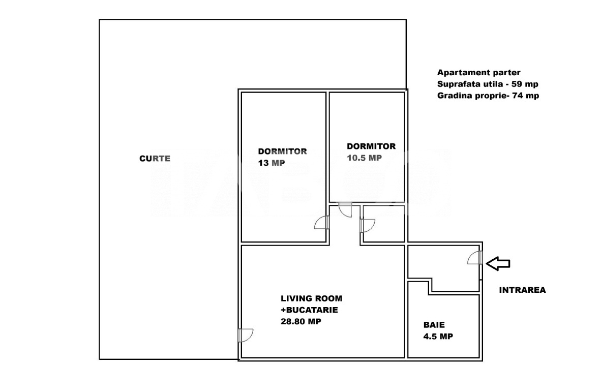
TABOO Imobiliare propune un apartament de vanzare cu 3 camere, decomandat, situat in localitatea Sibiu, zona Selimbar, aflat la Parter intr -un imobil tip bloc cu regim de inaltime pe Parter + 2 Etaje; anul constructiei 2019, structura caramida. Suprafata utila de 59 mp si gradina de 74 mp.
Apartamentul este structurat astfel:
• Hol de compartimentare la intrare cu zona de dressing;
• Bucatarie deshisa cu living;
• Baie cu dus si geam de aerisire;
• Living cu iesire in gradina;
• Dormitor matrimonial;
• Dormitor de copil;
• A doua baie transformata in spatiu de depozitare;
Finisajele interioare sunt moderne:
• Usa intrare: metal;
• Usi interioare: celulare;
• Tamplarie ferestre: pvc, termopan;
• Pereti: vopsea lavabila, faianta;
• Podele: parchet, gresie.
Utilitati si dotari:
• Bucatarie: mobilata si utilata;
• Mobilat: complet;
• Utilitati: curent electric, apa, canalizare, gaz, catv, telefon, acces internet, fibra optica;
• Izolatii: exterior, bloc izolat termic;
• Contorizare: apometre, contor gaz, contor curent electric, contorizare separata;
• Caracteristici bloc: interfon, acoperis, curte, gradina.
Apartamentul se vinde mobilat si utilat cu: plita electrica, cuptor, hota, masina de spalat rufe, frigider cu congelator.
Incalzirea se realizeaza prin centrala proprie, calorifere.
Se accepta ca si modalitate de plata surse proprii sau credit bancar.
Apartament de vanzare 3 camere 2 bai gradina 74mp si parcare Selimbar
Detalii Proprietate
Bucatarie
- Mobilata
- Utilata
Dotari
- Complet
- Debara
- Mobilata
- Utilata
- Apometre
- Contor gaz
- Masina de spalat rufe
- Frigider
- TV
- Hota
- Interfon
- Acoperis
- Curte
- Gradina
Finisaje
- Finisat
- Exterior
- Bloc izolat termic
- Vopsea lavabila
- Faianta
- Parchet
- Gresie
- PVC
- Metal
- Celulare
Oferte similare în zona Selimbar:
Proprietăți asemănătoare:
