Descriere Imobil
Apartament 3 camere de vanzare, decomandat, 76 mp, zona Turnisor, Sibiu.Avantaje majore ale acestui apartament:
• Un loc de parcare inclus in pret
• Boxa de depozitare la demisolul blocului/ Pivnita - aprxomativ 5 mp
• Pretabil investitie sigura - apartamentul este inchirat momentan
• Zona in continua dezvoltare, perfecta pentru familii;
• Locatie ferita de aglomeratie
• Foarte aproape de Zona Industriala de Vest.
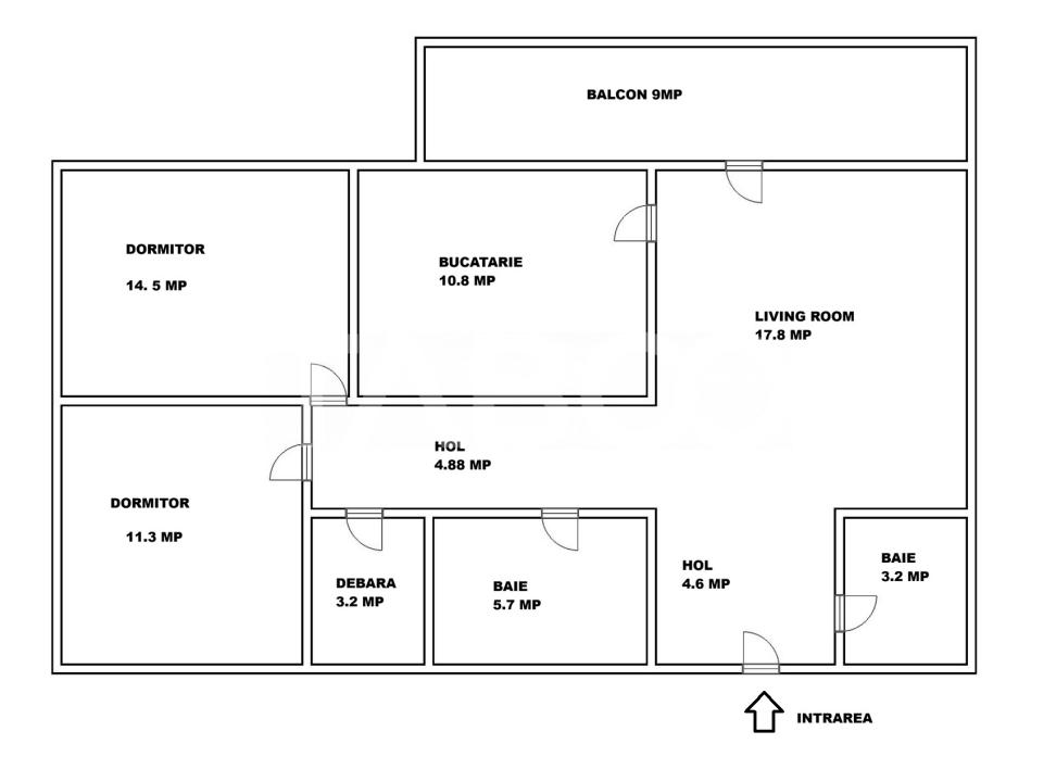
TABOO Imobiliare propune un apartament de vanzare cu 3 camere, decomandat, situat in localitatea Sibiu, zona Turnisor, aflat la etajul 2 intr -un imobil tip bloc cu regim de inaltime pe Parter + 4 Etaje; anul constructiei 2009, structura caramida. Suprafata utila de 76 mp + balcon de 9 mp.
Apartamentul este structurat astfel:
• Hol la intrare de compartimentare cu o zona de dressing;
• Bucatarie separata;
• Baie de serviciu;
• Living cu balcon;
• Hol intermediar;
• Dormitor cu pat matrimonial;
• Dormitor secundar;
• Debara;
• BAie cu cada;
Finisajele interioare sunt clasice:
• Usa intrare: metal;
• Usi interioare: celulare;
• Tamplarie ferestre: pvc, termopan;
• Pereti: vopsea lavabila, faianta;
• Podele: parchet, gresie.
Utilitati si dotari:
• Bucatarie: mobilata, utilata;
• Mobilat: complet;
• Utilitati: curent electric, apa, canalizare, gaz, catv, telefon, acces internet, fibra optica;
• Izolatii: exterior, bloc izolat termic;
• Contorizare: apometre, contor gaz, contor curent electric, contorizare separata;
• Caracteristici bloc: interfon, acoperis.
Apartamentul se vinde mobilat si utilat cu: plita pe gaz, cuptor, hota, masina de spalat rufe, frigider cu congelator, cuptor cu microunde.
Incalzirea se realizeaza prin centrala proprie, calorifere.
Se accepta ca si modalitate de plata surse proprii sau credit bancar.
Apartament de vanzare 3 camere + boxa si balcon parcare etaj 2 Alma
Detalii Proprietate
Bucatarie
- Mobilata
- Utilata
Dotari
- Complet
- Pivnita
- Dressing
- Mobilata
- Utilata
- Apometre
- Contor gaz
- Masina de spalat rufe
- Frigider
- TV
- Hota
- Interfon
- Acoperis
Finisaje
- Finisat
- Exterior
- Bloc izolat termic
- Vopsea lavabila
- Faianta
- Parchet
- Gresie
- PVC
- Metal
- Celulare
Oferte similare în zona Turnisor:
Proprietăți asemănătoare:
