Descriere Imobil
Apartament 3 camere de vanzare, decomandat, 67 mp, zona Mihai Viteazul, Sibiu.Avantaje majore ale acestui apartament:
• Decomandare cu bucatarie separata
• Orientare spre curte interioara – liniste, lumina naturala pe tot parcursul zilei
• Zona retrasa de la zgomotul bulevardului
• Zona excelenta, aproape de magazine, scoli, gradinite, statii de autobuz, farmacii, piata agroalimentara.
• Locatie ferita de aglomeratie
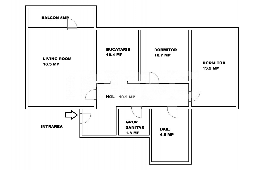
TABOO Imobiliare propune un apartament de vanzare cu 3 camere, decomandat, situat in localitatea Sibiu, zona Mihai Viteazul, aflat la etajul 4 intr -un imobil tip bloc cu regim de inaltime pe Parter + 10 Etaje; anul constructiei 1970, structura beton. Suprafata utila de 67 mp + balcon deschis de 4 mp.
Apartamentul este structurat astfel:
• Hol de compartimentare;
• Bucatarie separata cu camara;
• Baie de serviciu ( grup sanitar);
• Baie cu cada;
• Living cu balcon;
• Dormitor;
• Dormitor.
Finisajele interioare sunt moderne:
• Usa intrare: metal;
• Usi interioare: celulare, lemn;
• Tamplarie ferestre: pvc, termopan;
• Pereti: vopsea lavabila, faianta;
• Podele: parchet, gresie.
Utilitati si dotari:
• Bucatarie: mobilata, utilata;
• Mobilat: complet;
• Utilitati: curent electric, apa, canalizare, gaz, catv, telefon, acces internet, fibra optica;
• Izolatii: exterior, bloc izolat termic;
• Contorizare: apometre, contor gaz, contor curent electric, contorizare separata;
• Caracteristici casa/vila: interfon, lift, acoperis.
Apartamentul se vinde mobilat si utilat cu: aragaz, cuptor, hota, masina de spalat rufe, frigider cu congelator.
Incalzirea se realizeaza prin centrala proprie, calorifere.
Se accepta ca si modalitate de plata surse proprii sau credit bancar.
Apartament de vanzare 3 camere decomandat Mihai Viteazul bloc cu lift
Detalii Proprietate
Bucatarie
- Mobilata
- Utilata
Dotari
- Complet
- Debara
- Pivnita
- Mobilata
- Utilata
- Apometre
- Contor gaz
- Masina de spalat rufe
- Frigider
- Aragaz
- Hota
- Interfon
- Lift
- Acoperis
Finisaje
- Finisat
- Exterior
- Bloc izolat termic
- Vopsea lavabila
- Faianta
- Parchet
- Gresie
- PVC
- Metal
- Celulare
- Lemn
Videoclip
Oferte similare în zona Mihai Viteazul:
Proprietăți asemănătoare:
