Descriere Imobil
Apartament 2 camere de vanzare, decomandat, 54 mp, zona Industrial Vest, Sibiu, COMISION 0.Acest apartament spatios este ideal pentru tine daca iti doresti o locuinta moderna, cu finisaje de lux, realizate cu atentie la fiecare detaliu! Zona linistita, cu spatii verzi amenajate, cu parcuri de joaca pentru copii si strazi de acces pavate, iti vor oferi confort si relaxare in fiecare zi cand te intorci obosit de la serviciu. De asemenea, daca ai un job in Zona Industriala de Vest a Sibiului, te vei bucura sa petreci doar 5 minute in trafic, pe drumul pana la munca si inapoi!
Avantaje majore ale acestui apartament:
• Un loc de parcare inclus in pret
• Posibilitate de a primi apartamentul mobilat si utilat dupa viziunea unui designer experimentat;
• Locatie ferita de aglomeratie
• Parc de joaca pentru copii, amenajat de catre dezvoltator
• Priveliste panoramica spre munti
• 45% din suprafata terenului din intregul ansamblu este destinata spatiilor verzi
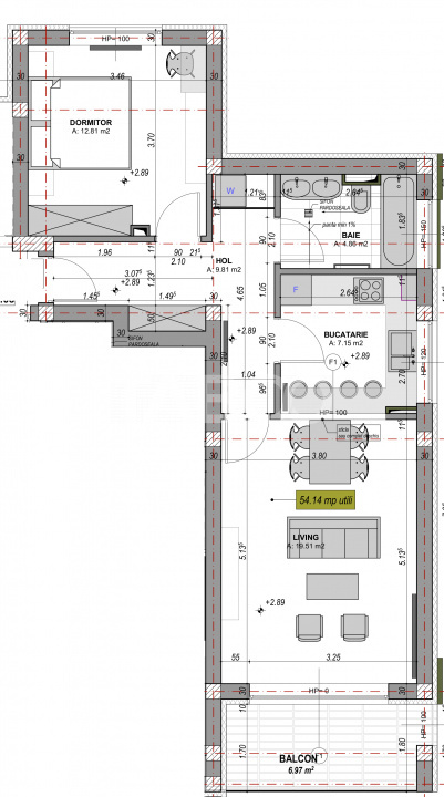
TABOO Imobiliare propune un apartament de vanzare cu 2 camere, decomandat, situat in localitatea Sibiu, zona Industrial Vest, aflat la parterul unei vile cu regim de inaltime pe Parter + 2 Etaje; anul constructiei 2025, structura caramida. Suprafata utila de 54 mp + balcon de 7 mp.
Apartamentul este structurat astfel:
• Hol;
• Bucatarie;
• Baie;
• Living cu balcon;
• Dormitor;
Finisajele interioare sunt de lux:
• Usa intrare: metal;
• Usi interioare: celulare;
• Tamplarie ferestre: pvc, termopan;
• Pereti: vopsea lavabila, faianta;
• Podele: parchet, gresie.
Utilitati si dotari:
• Bucatarie: nemobilata, neutilata;
• Mobilat: nemobilat;
• Utilitati: curent electric, apa, canalizare, gaz, catv, telefon, fibra optica;
• Izolatii: exterior, bloc izolat termic;
• Contorizare: apometre, contor gaz, contor curent electric, contorizare separata;
• Caracteristici casa/vila: videointerfon, spatii agrement, acoperis, senzor de fum.
Apartamentul se vinde nemobilat, dar exista si posibilitate de predare complet mobilat si utilat cu: plita electrica / plita pe gaz/aragaz, cuptor, hota, masina de spalat rufe, uscator rufe, masina de spalat vase, frigider cu congelator, cuptor cu microunde, espressor de cafea.
Incalzirea se realizeaza prin centrala proprie, incalzire pardoseala si dispune de sistem de climatizare (A.C.).
Se accepta ca si modalitate de plata surse proprii sau credit bancar.
Apartament spatios cu 2 camere balcon si incalzire in pardosea
Detalii Proprietate
Bucatarie
- Nemobilata
- Neutilata
Dotari
- Nemobilat
- Nemobilata
- Neutilata
- Apometre
- Contor gaz
- Videointerfon
- Spatii agrement
- Acoperis
- Senzor de fum
Finisaje
- Finisat
- Exterior
- Bloc izolat termic
- Vopsea lavabila
- Faianta
- Parchet
- Gresie
- PVC
- Metal
- Celulare
Oferte similare în zona Industrial Vest:
Proprietăți asemănătoare:
