Descriere Imobil
Apartament 3 camere de vanzare, nedecomandat, 108 mp, zona Orasul de Jos, Sibiu.Imaginati-va cum ar fi sa traiti in inima unei povesti, la cativa pasi de Centru Istoric al Sibiului, unde fiecare colt spune o istorie si fiecare strada pulseaza cu viata. Un apartament cu 3 camere in acest loc inseamna nu doar un camin, ci o oportunitate de a experimenta adevarata frumusete a orasului. Veti avea tot ce va trebuie cativa pasi distanta, pietele istorice, cafenelele pitoresti. Fiecare dimineata va incepe cu aerul proaspat si energia orasului care se trezeste, iar seara va invaluie in atmosfera magica a luminilor vechi de secole.
Avantaje majore ale acestui apartament:
• Pretabil investitie sigura
• Locatie centrala
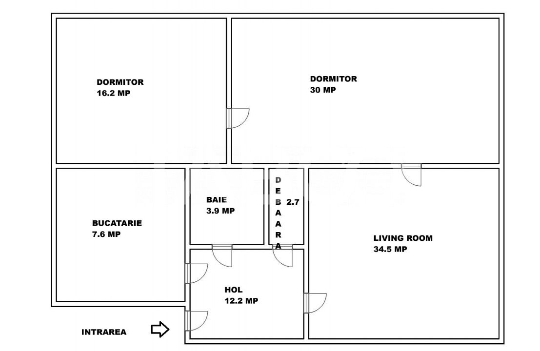
TABOO Imobiliare propune un apartament de vanzare cu 3 camere, nedecomandat, situat in localitatea Sibiu, zona Orasul de Jos, aflat la etajul 1 intr -un imobil tip casa/vila cu regim de inaltime pe Parter + 1 Etaje; anul constructiei 1900, structura . Suprafata utila de 108 mp + terasa comuna pe etaj de 12 mp.
Apartamentul este structurat astfel:
• Hol de compartimentare cu intrare in baie, bucatarie si baie;
• Bucatarie;
• Baie;
• Living;
• 2 Dormitoare spatioase;
Finisajele interioare sunt moderne:
• Usa intrare: pvc;
• Usi interioare: celulare;
• Tamplarie ferestre: pvc, termopan;
• Pereti: vopsea lavabila, faianta;
• Podele: parchet, gresie.
Utilitati si dotari:
• Bucatarie: mobilata, partial utilata;
• Mobilat: partial mobilat;
• Utilitati: curent electric, apa, canalizare, gaz, catv, telefon, acces internet, fibra optica;
• Contorizare: apometre, contor gaz, contor curent electric, contorizare separata;
• Caracteristici casa/vila: interfon, acoperis, curte comuna.
Apartamentul se vinde partial mobilat si partial utilat cu: aragaz, cuptor, hota.
Incalzirea se realizeaza prin centrala proprie, calorifere.
Se accepta ca si modalitate de plata surse proprii sau credit bancar.
Apartament spatios de vanzare cu 3 camere la etajul 1 in Orasul de Jos
Detalii Proprietate
Bucatarie
- Mobilata
- Partial utilata
Dotari
- Partial
- Mobilata
- Partial utilata
- Apometre
- Contor gaz
- Frigider
- Aragaz
- Hota
- Interfon
- Acoperis
- Curte comuna
Finisaje
- Finisat
- Vopsea lavabila
- Faianta
- Parchet
- Gresie
- PVC
- PVC
- Celulare
Videoclip
Oferte similare în zona Orasul de Jos:
Proprietăți asemănătoare:
